1/10



熊本県 八代市
0.0㎡ (0.0坪)
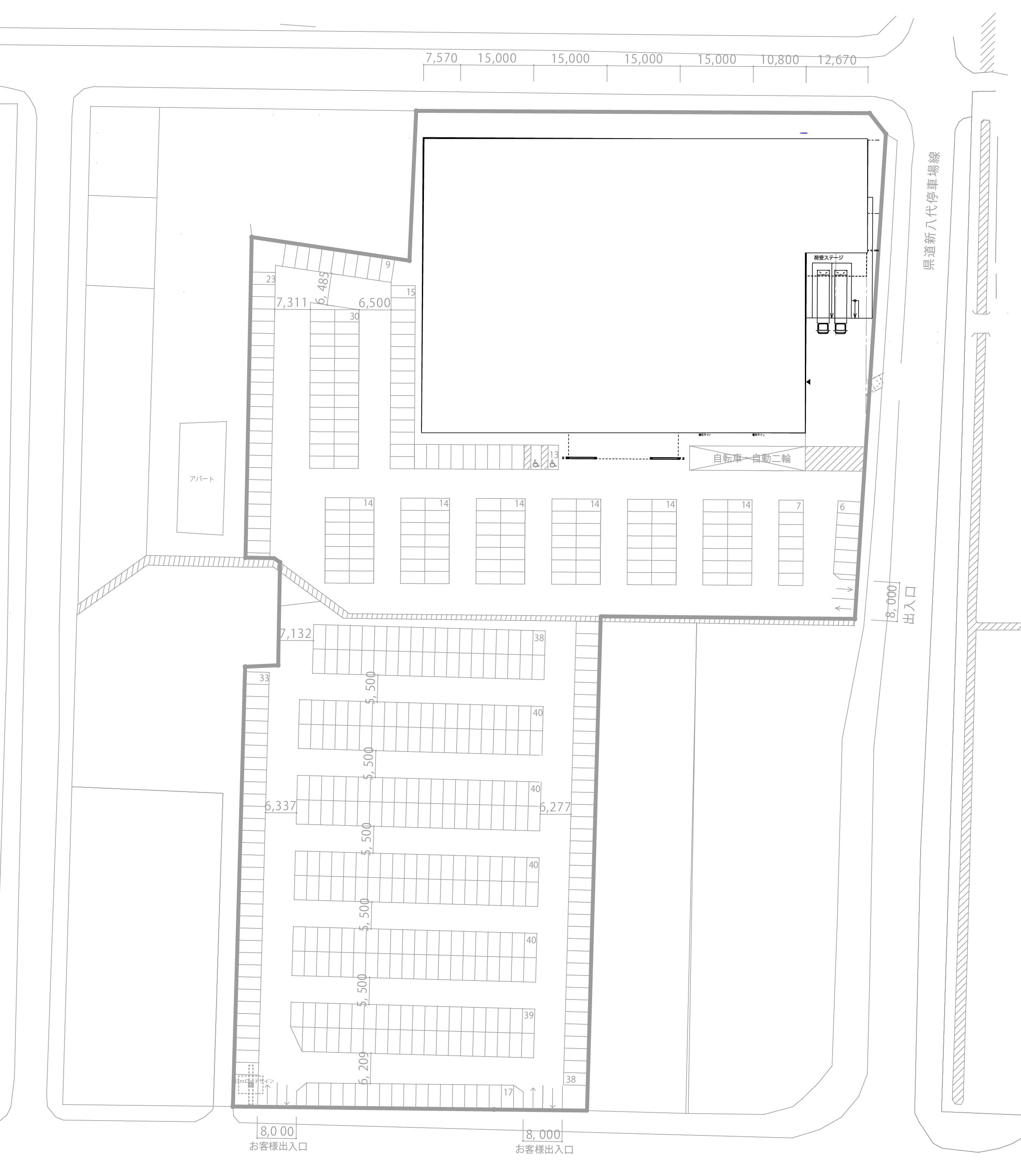
図面・フロアマップ

スーパーセンタートライアル新八代駅前店の駐車場区画となります。 店舗建設も含む開店までの流れをご説明させていただきますので、詳細についてはお問い合わせください。
物販
食品・生鮮・惣菜・グロサリー
食物販(個包装、贈答菓子等)
食物販(切り売り、量り売り等)
軽飲食(カフェ等)
重飲食(レストラン等)
理美容・サロン
病院・クリニック・薬局
スポーツジム・フィットネス
学習塾・子供向け教室
語学・資格・カルチャー教室
アミューズメント
サービス提供
展示・ギャラリー
政府・自治体・公共団体
その他募集中の業態